Fertige Projekte Neue Projekte Planungen aktuell Weitere Leistungen Meine Partner Immobilienangebote Rechtliches


Zu verkaufen:

Baugrundstück mit bereits genehmigter Reihenhaus-Bebauung


Dorfstr. 2, 86940 Schwifting, Landsberg am Lech (Kreis)


Eckdaten:

Die Grundstücksgröße beträgt 1.123m². Das Grundstück ist erschlossen und liegt im Bereich eines einfachen Bebauungsplanes. Die Grundflächenzahl beträgt 0,25, die Geschossflächenzahl 0,28. Ab sofort verfügbar.

Über Schwifting:

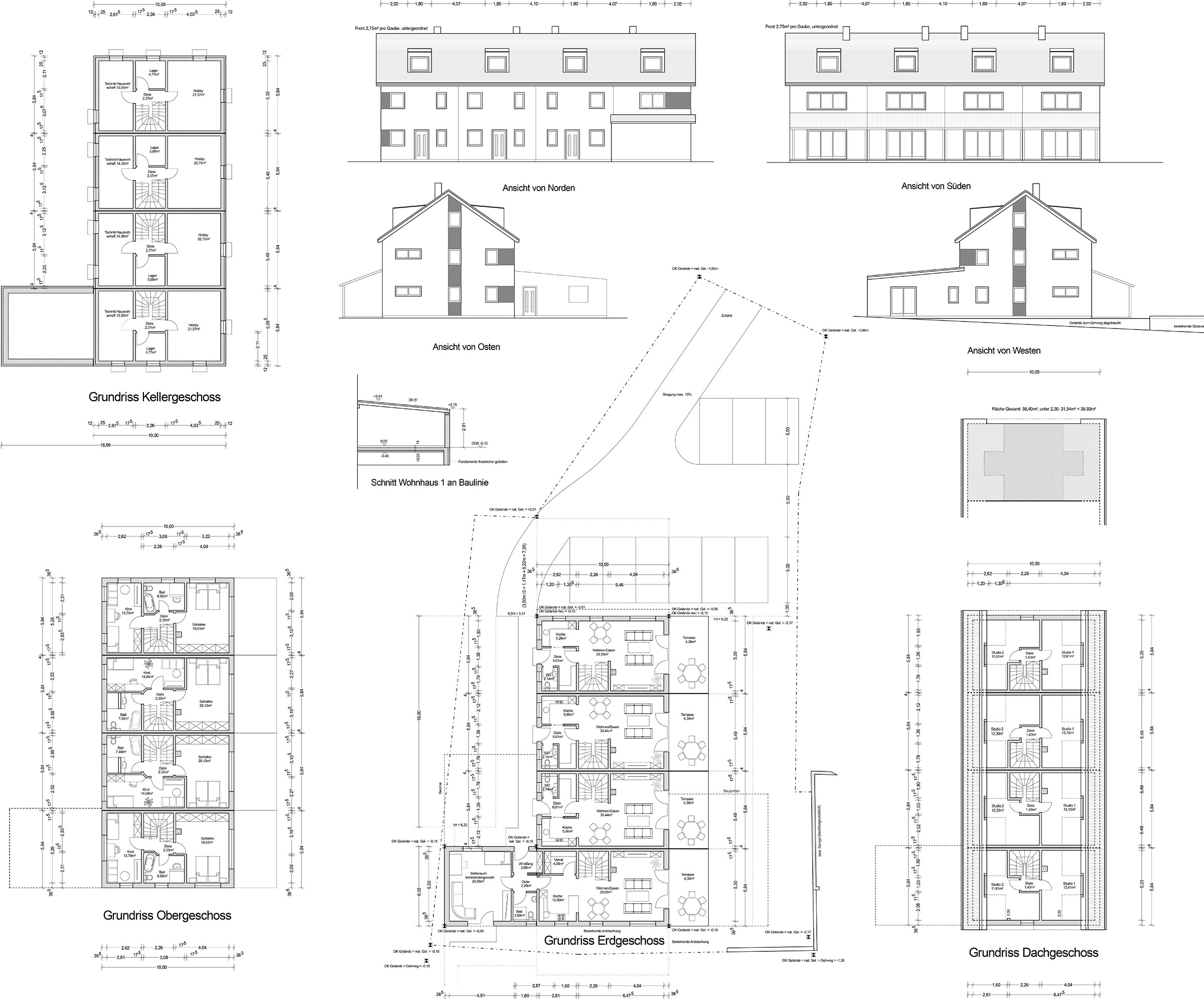
Schwifting ist eine kleine Gemeinde unmittelbar vor den Toren Landsberg am Lech. Auch zur nahe gelegene Autobahn A96 gibt es eine direkte Anbindung. Die Gemeinde liegt vier Kilometer bzw. 5 Autominuten östlich von Landsberg wo Sie Einkaufsmöglichkeiten, Ärzte, Banken, Baumärkte, etc., finden. Das Baugrundstück selbst befindet sich im Zentrum von Schwifting mit einer Größe von 1.123m². Für das Baugrundstück existiert ein genehmigter Bauplan, der die Bebauung mit einem Reihenhaus (4 Einheiten) und einer Einliegerwohnung ermöglicht. Ein Baubeginn wäre somit sofort möglich. Vorher müsste ein noch bestehendes Wohnhaus mit Stadel abgebrochen werden, wobei erste Rückbaumaßnahmen bereits erfolgt sind. Laut Angebot betragen die Abbruchkosten noch ca. 50.000 Euro.

Karte:



Die genehmigte Bebauung:

Download

Käuferprovision: 3,57% (incl. MwSt.)

Mail an Heinz Dörfler


Gewerbeerlaubnis nach § 34c GewO vorhanden

Verkaufspreis: 940.000 Euro