Fertige Projekte Neue Projekte Planungen aktuell Weitere Leistungen Meine Partner Immobilienangebote Rechtliches


Vorteile einer Ausführungs- /bzw. Werkplanung

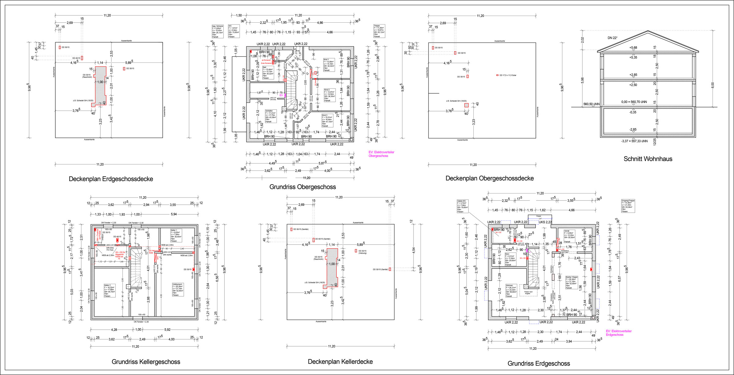
Eine Werkplanung ist eine auf den Eingabeplan aufgesetzte Detailplanung.

Hierbei werden alle Details wie Raumhöhen, Fußbodenaufbauten, Fenstergrößen, Deckenstärken nach Statik, Deckendurchbrüche, Aussparungen, Position von Wasser- /Abwasserleitungen, Position von Steckdosen, Lichtschaltern, Heizkreisverteiler und alle anderen notwendigen Details festgelegt.

Dies erfolgt in ausführlicher Zusammenarbeit mit meinen Bauherrn und wird dann im Vorfeld mit jedem beteiligtem Unternehmer ausgearbeitet und gegebenenfalls so lange optimiert, bis das Ergebnis für alle Seiten zufriedenstellend ist.

Wo ist Ihr Vorteil?

Bereits vor Baubeginn ist jeder Seite jedes Detail der Ausführung bekannt. Somit sind unerwünschte Nachträge durch "zusätzliche, weil nicht bekannte zusätzliche Leistungen", die in der Regel oft zu massiven Verteuerungen des Projekts führen, nicht mehr möglich.

Eine Werkplanung spart Zeit, Ärger und vor allem Ihr Geld und sorgt in Verbindung mit einem festgelegten Zeitenplan für einen rundum harmonischen Ablauf.

Gerne erstelle ich Ihnen auch hierfür ein Angebot.