Startseite
Über mich / uns
Baugrundstück LL
Wohnhaus bei Bissingen
Fertige Projekte
Neugreifenberg
Schöngeising
Lochhausen
Schondorf
Türkenfeld
Türkenfeld, Umbau
Neue Projekte
Malching Wohnhaus
Germering Wohnhaus
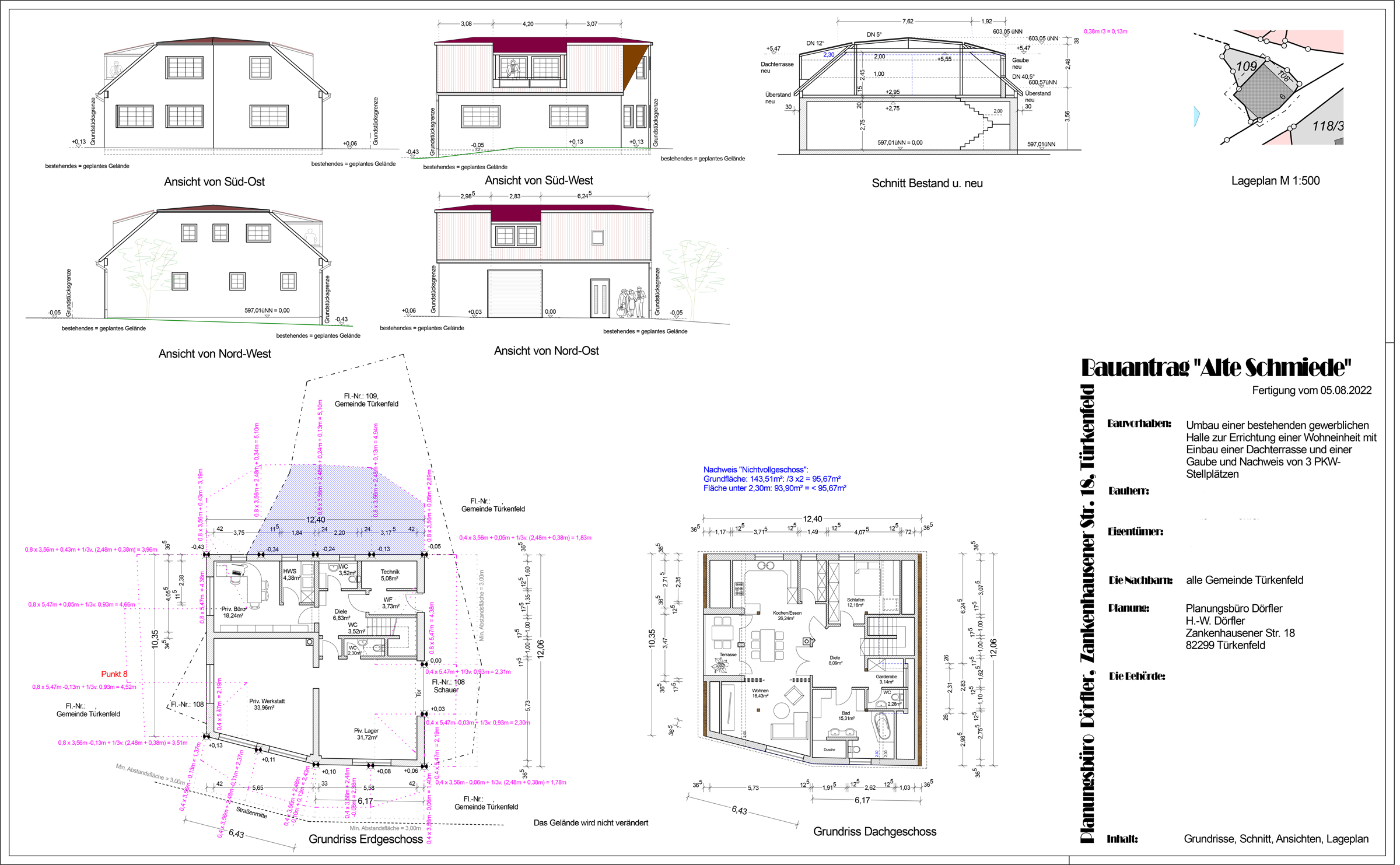
Türkenfeld, Schmiede
Grafrath, Neubau
Geltendorf, Anbau
Planungen aktuell
Wohn-Geschäftshaus FFB
Pfänder, Österreich
Türkenfeld Aufstockung
Schondorf Aufstockung
Türkenfeld Wohnhaus
Türkenfeld Doppelhaus
Wohnanlage Eresing
Weitere Leistungen
Entwässerungsplanung
Ausführungsplanung
Meine Partner
Ausführende Firmen
Immobilienangebote
Baugrund Moorenweis
Rechtliches
Impressum
Datenschutz